479 Chocolate Hole #3211 wk 40St John, VI
Offered at$5,500
0 Beds
1 Baths
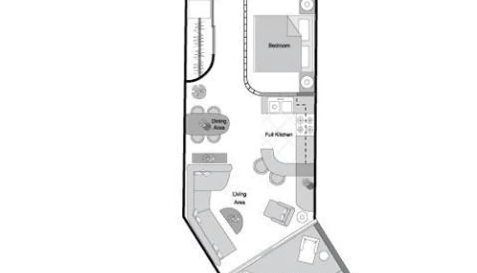
500 SqFt
3211 wk 40 Saturday to Saturday Secure your vacation forever, enjoy a week on beautiful St. John. Includes use of all hotel amenities: pools, Jacuzzis, spa, restaurants, beach , water sports, tennis and more at your door! Reserve replacement fee applies for 2011 *Photos are of a typical studio unit and may not be of this specific unit Read More
Gallery
















Prev
Next
